REHABILITERING

Kunsten å snu om på et hus

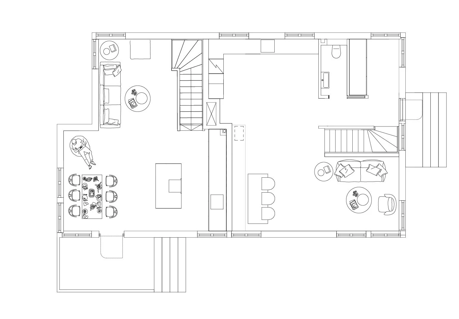
Tomannsboligen i Berg hageby er endret fra horisontaldelt til vertikaldelt slik at begge enheter får bolig over flere plan, og direkte utgang til hagen.

Huset ligger i et område som er vernet, og fasaden kunne ikke endres vesentlig. Eksisterende vindusplassering og konstruksjon har derfor gitt forutsetninger for den nye løsningen. Boligen er totalrehabilitert.

 

Prosjektnavn: Irisveien
Sted: Berg, Oslo
Program: Rehabilitering av tomannsbolig
Oppdragsgiver: Privat
Status: Ferdigstilt 2024

Plan U

 
 

Plan 1

Plan 2